輕而不浮,奢而不俗
打造富有格調的宜居美家
”
坐標 | 貴州·遵義
項目名稱 丨 天然與設計的匠心共筑
項目類型 丨 四層獨棟別墅
項目面積 丨 600+㎡
服務內容 丨 整案空間設計、全屋固裝高定、配套家具落地
設計風格 丨 現代輕奢風格
1F 意式美學 動感空間

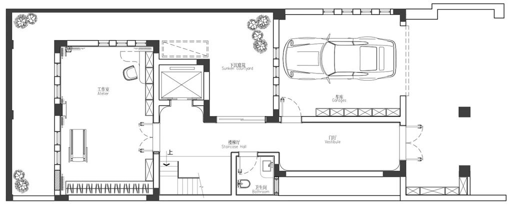
△1F平面圖
打開歸家的門
曲徑通幽
灰色卷紋有影楓木飾面
通鋪全屋墻面
光影變幻的天然木紋肌理
在瑩潤通透的漆膜下
營造與生俱來的內斂質感
掩上門后
拂去身后的浮躁與喧囂


旋轉樓梯蜿蜒盤旋
玻璃扶手宛若銀河,
連接不同層級
拾階而上
每一步都有華光作伴
以光為媒,歡迎歸家的腳步

張弛有度才是生活的常態
家中多功能體驗區尤為重要
設計專屬的健身娛樂區
居家健身娛樂兩不誤
動靜兩相宜
增加家人之間的互動

△效果圖
素雅色調平衡藝術美感
多材質打造低調質感空間
近距離體會生活魅力



△實景圖
2F 光影變幻 魅力綻放

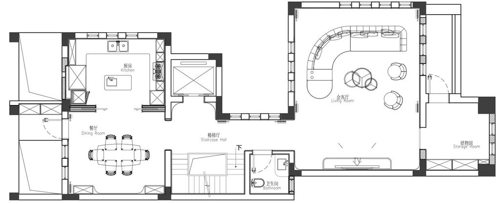
△2F平面圖

豐盈、氣質、輕奢
空間處處彌漫著優雅
目光所及皆是雅奢滋味
挑空樓層開闊又通透
軟硬裝巧妙跳色
靈動又活躍
猶如一曲曲悅耳的音符

整體流暢的線條
鋼琴漆瑩潤亮光的質感
靜靜鋪展開時間的詩意
高雅、深邃、寧靜
讓自然裝點美居


挑空樓層設計把空間打開
大面積玻璃窗引入自然光線
內外呼應,自由呼吸
增添空間的層次及氛圍
客廳的光影時刻變幻
綻放不一樣的魅力

一體化的餐廳設計
加強空間通透感
帶有現代輕奢質感的定制高柜
實現生活的便利及美觀
整體空間和諧優雅


整潔素凈的廚房空間
呈現著質感和肌理的銜接
隱藏式的茶玻木門
跳脫傳統風格
賦予更多的靈活性及開放性

電梯間一體化布局
染色有影木皮飾面流露出質感的效果
營造精致的交織光影
沐浴歲月中,盡顯自然純粹

3F 簡約節奏 樸素留白

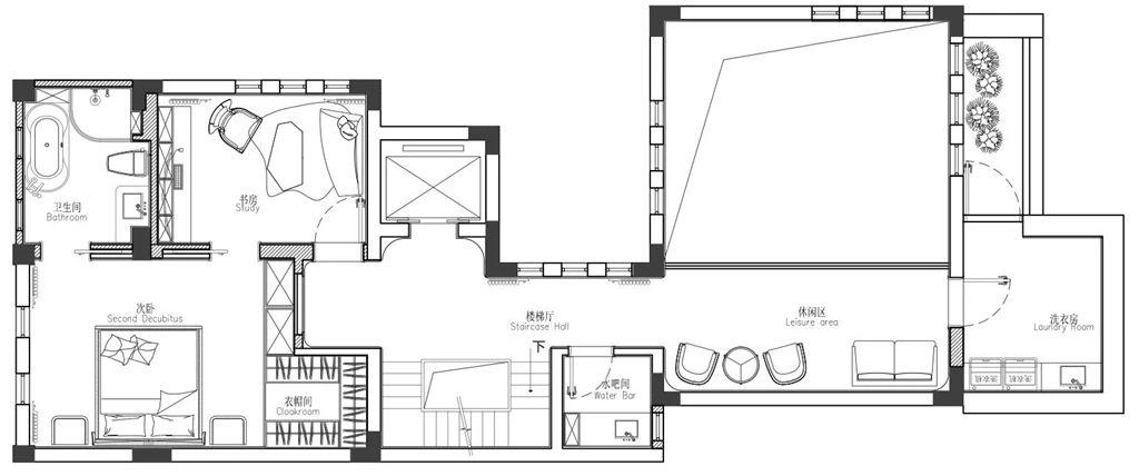
△3F平面圖

△效果圖

△實景圖
大面積淺灰硬包飾面板
呈現出極簡生活美學的留白意境
定制床頭屏暗藏光影
充滿設計趣味

△效果圖


△實景圖
精心定制木作書柜
打造書香寧靜的閑適空間
木作與玻璃窗有序間隔
引入豐富柔和的光影
開闊空間視野
展現起伏流動的節奏魅力


以石紋瓷磚作畫
賦予私人空間的別樣氛圍
自然色系整體通鋪,讓空間更加明亮
靈活多樣功能,享受輕松時刻

△效果圖

△實景圖
在一眼望穿的過廳畫面里
找尋節奏與韻律的美感
溫和的米色和自然木飾面渾然一體
蘊含平衡、寧靜之美

染色卷紋有影楓木皮質地堅硬、韌性佳
大面積的亮光影木讓空間簡單大氣
優良的拼接工藝
讓真正的奢華隱藏于細膩的紋理當中

水吧間浮動著迷人的光澤
玻璃、開放與柜門的三段式設計
讓小小的空間富有層次感
又兼具收納與實操功能
讓設計回歸生活
4F 身心向陽 典藏雅奢

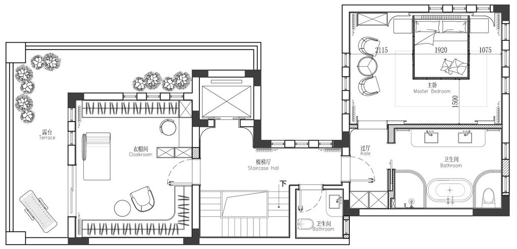
△4F平面圖

△效果圖


△實景圖
米白色調軟包與影木木飾面組成對稱主背景
顯露干凈簡潔的色澤與肌理
與墻面、地板互相共鳴
匯成生活的真實感受
活躍中又有協調
當燈光灑落,現代與輕奢交融

臥室過廳大面積使用木皮飾面
作為自然原木色調
滿足業主對原木空間的想象
帶來恬靜優雅的氛圍

△效果圖


△實景圖
專屬定制衣帽間
讓有限空間實現雙倍功能效果
雅白門板與茶玻搭配
制造空間層次感
讓氣氛靜謐且溫馨
將現代藝術與日常生活完美融合
營造出高級優雅的氣息

縱觀衛生間的多種功能
延續獨特的裝飾主義魅力
巧妙地平衡輕奢優雅和時尚大氣
將山水之間的純粹靈動充分展現
賦予空間專屬的靈動氣質
^^^^^^^^^^^^^^^^^^^^^^^
天然與設計,匠心共筑,
靜看繁雜世界,奢享從容人生。
上一篇:卡芬達家居丨生活與藝術交織,簡境致美
下一篇:卡芬達家居丨東方美學,現代演繹